Open menu
Terug naar projecten
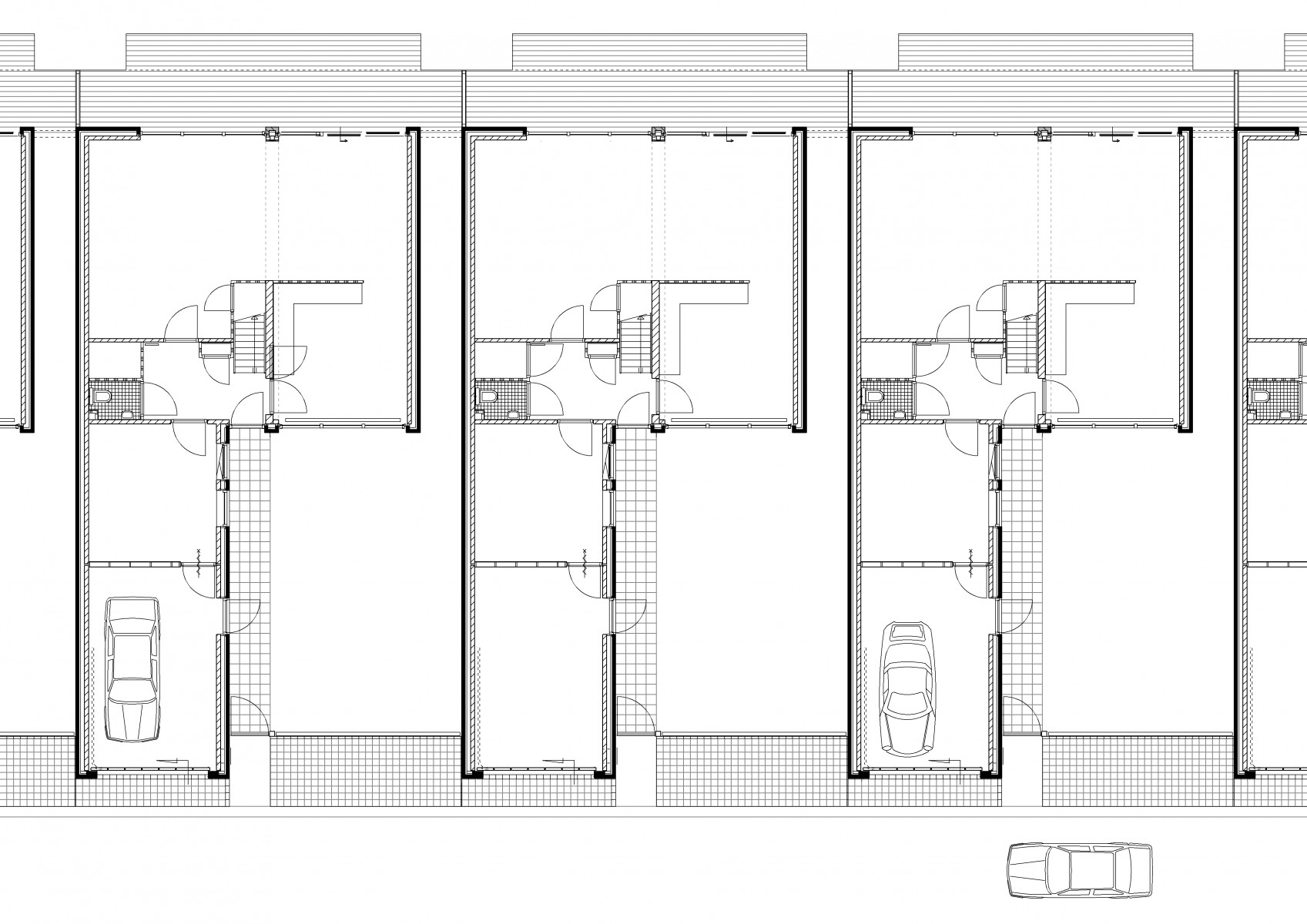
116 plattegrond begane grond
Home
Over ons
Nieuws
Projecten
Woningen
Kantoren
Bedrijven
Onderwijs
Recreatie
Diversen
8862 SE Harlingen
+31 51 743 00 44
info@penta-architecten.nl