‘Greate Greve’
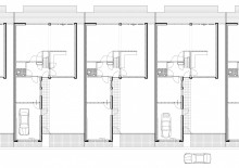
SneekAls nieuwe entree naar de erachterliggende jaren-70 wijk is een stoere rij ‘poortwachters’woningen ontworpen.
Het silhouet van de langzaam oplopende bruinrode volumes lijkt op het neergestreken bruinzeil van de Friese skûtsjes.
Als nieuwe entree naar de erachterliggende jaren-70 wijk is een stoere rij ‘poortwachters’woningen ontworpen.
Het silhouet van de langzaam oplopende bruinrode volumes lijkt op het neergestreken bruinzeil van de Friese skûtsjes.